AKTIONSHAUS “BASIC” – RAUM FÜR DAS WESENTLICHE
Manchmal muss es kein volles Haus sein – sondern einfach Raum für das Wesentliche. Für Ruhe, für Zeit zu zweit, für Gäste, für gemeinsame Abende – und vielleicht auch für die Menschen, die dir besonders am Herzen liegen. Unser Aktionshaus „Basic“ bietet genau diesen Freiraum.
Ob als Paar, das gerne Gastgeber ist, als Lebensgemeinschaft mit Eltern oder als Rückzugsort vom Trubel – dieses Haus schafft offene Wohnbereiche zum Genießen, klare Rückzugszonen zum Entspannen und ein intelligentes Raumkonzept, das sich deinen Lebensmodellen anpasst.
Es ist ein Ort für Gespräche auf der Terrasse, für inspirierte Homeoffice-Tage, für gemeinsames Kochen und spontane Übernachtungsbesuche.
Mit seiner modernen Architektur, viel Licht und dem gewissen Gefühl von “endlich angekommen” verbindet dieses Haus Stil, Komfort und Weitblick – für Menschen, die sich bewusst für ein Leben mit Qualität entscheiden.



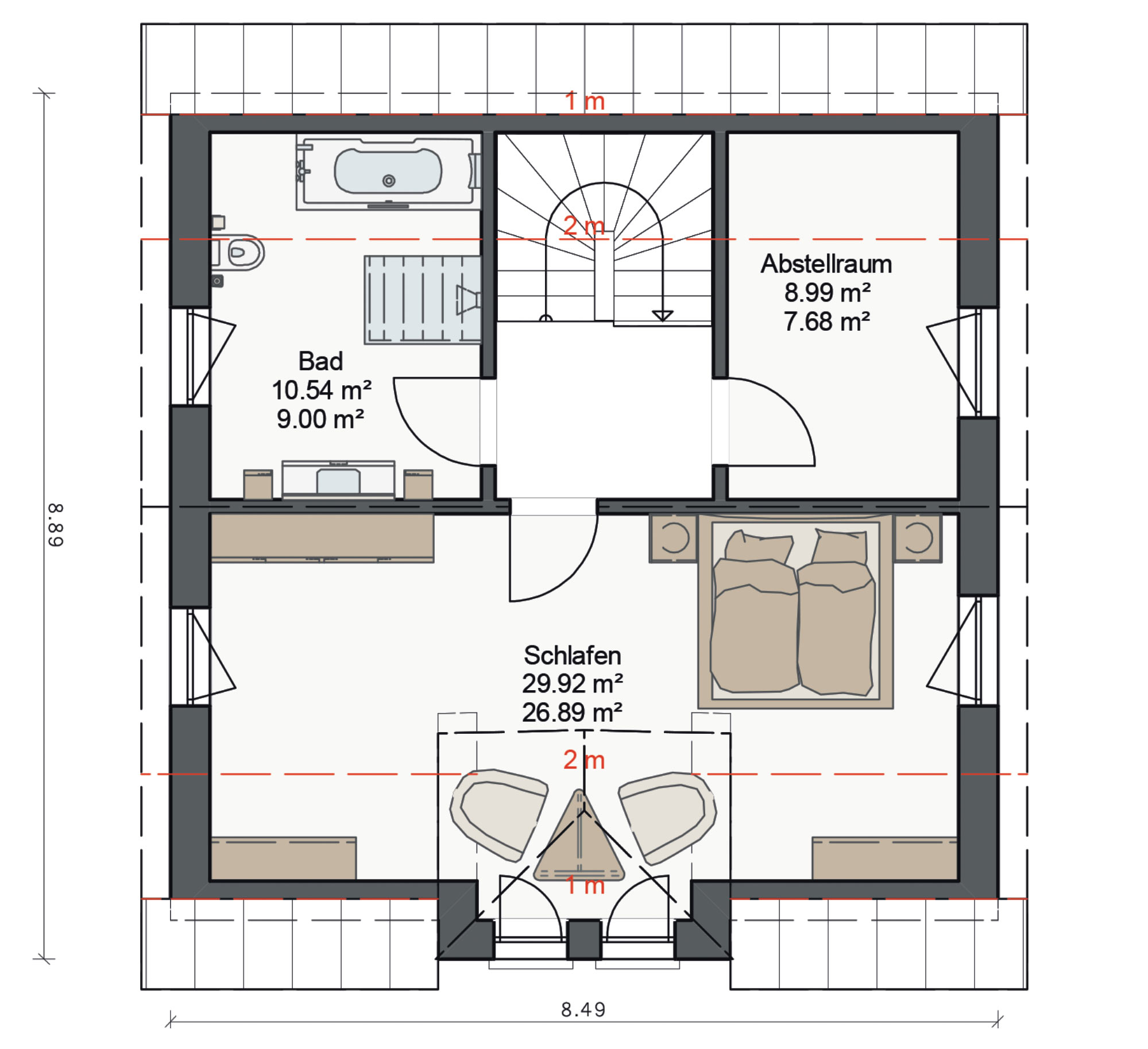
GRUNDRISSE “BASIC”



TRANSPARENTE ANGEBOTE
Notwendige Arbeiten und Leistungen, die sich im Laufe der Angebots-Erstellung ergeben (unter anderem abhängig von der gewünschten Ausführung ihres Traumhauses und / oder Auflagen ihrer Gemeinde, bzw. ihres Grundstücks) nennen wir Ihnen wie immer transparent in der Komplett-Ausführung ihres Gesamtangebotes. (*Aktionspreis Entfernungsbedingt)
ANSICHTEN “BASIC”




DAS KASTELL AUSBAUHAUS
DAS KASTELL AUSBAUHAUS
Bei einem Ausbauhaus wird der veredelte Rohbau inklusive Dach und Fenster von KASTELL-Massivhaus erstellt, während Sie als Bauherr oder Baufamilie den Innenausbau ganz oder teilweise selbst vornehmen. Entweder in Eigenleistung, mit dem örtlichen Handwerker oder mit dem Ausbau-Partner von KASTELL Massivhaus.
UNSERE VISION
KASTELL-Massivhaus verbindet das Wertvollste aus dem Massivhausbau mit dem Besten aus dem Fertighausbau – individuell und frei geplant. Nach Maß vorgefertigt und in kürzester Zeit massiv gebaut. Wir setzen auf eine nachvollziehbare, transparente Preisgestaltung und eine Festpreisgarantie nach Vertragsabschluss. Dank der ökologischen Baustoffe „Blähton und Blähglas” garantieren wir gesunden Wohnkomfort. Somit schaffen wir gemeinsam ein ZUHAUSE für Sie, Ihre Kinder (falls schon da), Oma und Opa, Ihre geliebten Haustiere oder ganz einfach FÜR DIE GANZE FAMILIE und das alles ganz nach Ihren persönlichen Vorstellungen, Bedürfnissen, Wünschen und Ihrer Lebensplanung.
